友情提醒:
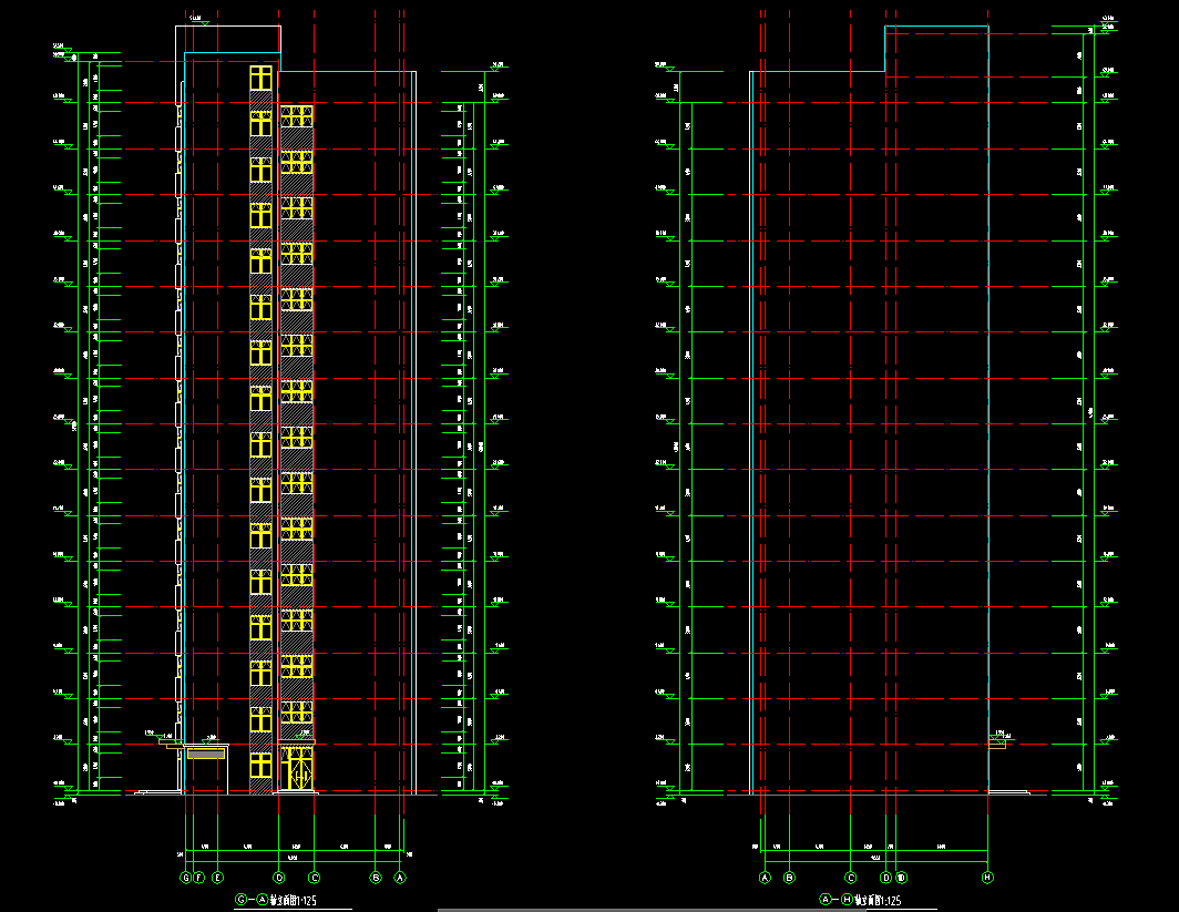
15层10988平方-某智能科技有限公司C1倒班楼
| 层数: | 15层 | 地上: | 15层 | 地下: | 0层 | 发布时间: | 2025-02-21 |
| 建筑类型: | 宿舍楼 | 结构类型: | 剪力墙结构 | 基础类型: | 桩基础 | 难易程度: | 简单 |
| 建筑面积: | 10988平 | 水电 | 是 | 地下室: | 否 | 出图年份: | 2024.08年 |
| 编号: | B15-10988 | ||||||
| 备注: | |||||||
| 以下为仅为建施与基础的部分截图,点击可放大 如需细看或看水电暖安装可联系客服可详看dwg文件 |
|
|




