友情提醒:
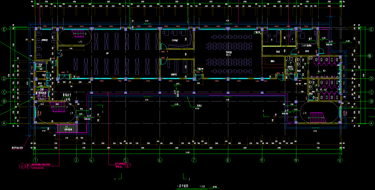
6层5238平方-某第二中学综合楼
| 层数: | 6层 | 地上: | 6层 | 地下: | 0层 | 发布时间: | 2025-02-25 |
| 建筑类型: | 办公楼-综合楼教学楼 | 结构类型: | 框架结构 | 基础类型: | 桩基础 | 难易程度: | 简单 |
| 建筑面积: | 5238平 | 水电 | 否 | 地下室: | 否 | 出图年份: | 年 |
| 编号: | S6-5238 | ||||||
| 备注: | |||||||
| 以下为仅为建施与基础的部分截图,点击可放大 如需细看或看水电暖安装可联系客服可详看dwg文件 |
|
|





