友情提醒:
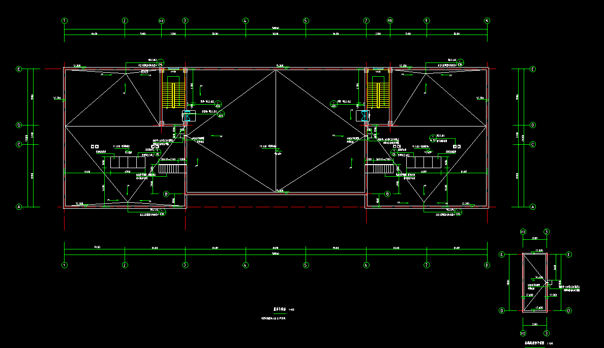
3层3427平方-某公司研发楼
| 层数: | 3层 | 地上: | 3层 | 地下: | 0层 | 发布时间: | 2025-09-03 |
| 建筑类型: | 办公楼-综合楼 | 结构类型: | 框架结构 | 基础类型: | 独立基础 | 难易程度: | 推荐简单 |
| 建筑面积: | 3427平 | 水电 | 是 | 地下室: | 否 | 出图年份: | 2025.04年 |
| 编号: | A3-3427 | ||||||
| 备注: | |||||||
| 以下为仅为建施与基础的部分截图,点击可放大 如需细看或看水电暖安装可联系客服可详看dwg文件 |
|
|





